Czujnik ciśnienia oleju a włącznik wentylatora
-
- Fachman
- Posty: 3246
- Rejestracja: 28 lis 2017, o 19:24
- Reputacja: 48
- Imię: Krzysztof
- Samochód: NUBIRA /Lacetti
- Silnik: 1.8 F18D3 121KM
- LPG: Tech
- Lokalizacja: LUBLIN
- Kontakt:
Czujnik ciśnienia oleju a włącznik wentylatora
Mam pytanie odnośnie mrugania lampki ciśnienia oleju.
Czy jest jakaś zależność w instalacji elektrycznej , pomiędzy czujnikiem ciś. oleju a przełącznikiem wentylatora i do tego jeszcze manetką od świateł? Jak przejadę ok. 100 km ES-ką powyżej 110 km/h , to czy za dnia czy w nocy , na wolnych obrotach ( np. na skrzyżowaniu) , mruga mi "alladyn" . Jak wyłączę nadmuch to lampka nie mruga . Silnik po kapitalce , nowa chłodnica ,płyn i nagrzewnica.
Gumka zdjęta z wtyczki czujnika ciś. oleju ( ruski patent) i przez pewien czas było dobrze.
Jak idzie kabel od czujnika oleju w instalacji elektrycznej?
Czy jest jakaś zależność w instalacji elektrycznej , pomiędzy czujnikiem ciś. oleju a przełącznikiem wentylatora i do tego jeszcze manetką od świateł? Jak przejadę ok. 100 km ES-ką powyżej 110 km/h , to czy za dnia czy w nocy , na wolnych obrotach ( np. na skrzyżowaniu) , mruga mi "alladyn" . Jak wyłączę nadmuch to lampka nie mruga . Silnik po kapitalce , nowa chłodnica ,płyn i nagrzewnica.
Gumka zdjęta z wtyczki czujnika ciś. oleju ( ruski patent) i przez pewien czas było dobrze.
Jak idzie kabel od czujnika oleju w instalacji elektrycznej?
VIN >KL1NF35BJ6K335315
- chocisz
- Profesjonalista
- Posty: 622
- Rejestracja: 17 gru 2019, o 19:13
- Reputacja: 38
- Imię: wojtas
- Samochód: Lacetti
- Silnik: F18D3
- Lokalizacja: warszawa
- Kontakt:
Re: Czujnik ciśnienia oleju a włącznik wentylatora
Trzeba by sprawdzić na schematach może mają wspólną masę, a co ma do tego gumka, która zazwyczaj uszczelnia styki przed wilgocią 

-
- Fachman
- Posty: 3246
- Rejestracja: 28 lis 2017, o 19:24
- Reputacja: 48
- Imię: Krzysztof
- Samochód: NUBIRA /Lacetti
- Silnik: 1.8 F18D3 121KM
- LPG: Tech
- Lokalizacja: LUBLIN
- Kontakt:
Re: Czujnik ciśnienia oleju a włącznik wentylatora
Sam nie wiem co z tą gumką . Sam byłem zdziwiony jak ruscy to tłumaczyli na filmach
Chyba jest filmik z you tuba w moim temacie "Remont silnika".

VIN >KL1NF35BJ6K335315
-
- Fachman
- Posty: 3246
- Rejestracja: 28 lis 2017, o 19:24
- Reputacja: 48
- Imię: Krzysztof
- Samochód: NUBIRA /Lacetti
- Silnik: 1.8 F18D3 121KM
- LPG: Tech
- Lokalizacja: LUBLIN
- Kontakt:
Re: Czujnik ciśnienia oleju a włącznik wentylatora
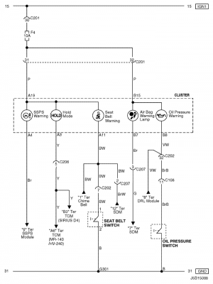
Mam prośbę o schemat tego kabela od czujnika . Jak on fizycznie idzie i jaką wtyczkę kupić ? Rosjanie mają taki patent , że lutują kabel z wtyczką do pinu czujnika i wywalają oryginalną wtyczkę .Robią takie najprostsze złącze samochodowe.
A tu są te filmiki. https://www.youtube.com/watch?v=w0MsEm4sVs4
https://www.youtube.com/watch?v=w0MsEm4sVs4
Dodano po 2 godzinach 3 minutach 25 sekundach:
I tu jest chyba powód , bo u mnie stukają kompensatory po rozgrzaniu silnika https://www.youtube.com/watch?v=fxeiRoOXVr4
Proszę o scalenie postów.
A tu są te filmiki. https://www.youtube.com/watch?v=w0MsEm4sVs4
https://www.youtube.com/watch?v=w0MsEm4sVs4
Dodano po 2 godzinach 3 minutach 25 sekundach:
I tu jest chyba powód , bo u mnie stukają kompensatory po rozgrzaniu silnika https://www.youtube.com/watch?v=fxeiRoOXVr4
Proszę o scalenie postów.
VIN >KL1NF35BJ6K335315
- chocisz
- Profesjonalista
- Posty: 622
- Rejestracja: 17 gru 2019, o 19:13
- Reputacja: 38
- Imię: wojtas
- Samochód: Lacetti
- Silnik: F18D3
- Lokalizacja: warszawa
- Kontakt:
Re: Czujnik ciśnienia oleju a włącznik wentylatora
Dość prosty obwód z tym, że jest tam jakaś odnoga do modułu DRL, a co z tym się wiąże ciężko mi stwierdzić 

- bubu1769
- Administrator
- Posty: 6869
- Rejestracja: 5 wrz 2018, o 16:40
- Reputacja: 457
- Imię: Bartłomiej
- Samochód: Aveo T250
- Silnik: 1.4 101KM
- Inny samochód: Orlando 1.4T, Meriva A 1.8
- Lokalizacja: Kalisz
- Kontakt:
Re: Czujnik ciśnienia oleju a włącznik wentylatora
W tak sposób DRL dostaje sygnał że silnik pracuje i może załączyć światła.
-
- Fachman
- Posty: 3246
- Rejestracja: 28 lis 2017, o 19:24
- Reputacja: 48
- Imię: Krzysztof
- Samochód: NUBIRA /Lacetti
- Silnik: 1.8 F18D3 121KM
- LPG: Tech
- Lokalizacja: LUBLIN
- Kontakt:
Re: Czujnik ciśnienia oleju a włącznik wentylatora
Akurat DRL-a nie mam oryginalnego ( brak modułu), tylko dokładałem osobno . Doczytałem się też , że można założyć czujnik od VAZ 2108 ( to chyba Łada?). Już mam mętlik w głowie
Dzięki za schemat .
Te łączenia : C 108 i C 202 to są jakieś "puszki"? Jak te przewody są łączone?

Te łączenia : C 108 i C 202 to są jakieś "puszki"? Jak te przewody są łączone?
VIN >KL1NF35BJ6K335315
- bubu1769
- Administrator
- Posty: 6869
- Rejestracja: 5 wrz 2018, o 16:40
- Reputacja: 457
- Imię: Bartłomiej
- Samochód: Aveo T250
- Silnik: 1.4 101KM
- Inny samochód: Orlando 1.4T, Meriva A 1.8
- Lokalizacja: Kalisz
- Kontakt:
Re: Czujnik ciśnienia oleju a włącznik wentylatora
To są złącza, C108 to jest to główne pod maską od wiązki silnika a C202 w kabinie od deski rozdzielczej.
-
- Fachman
- Posty: 3246
- Rejestracja: 28 lis 2017, o 19:24
- Reputacja: 48
- Imię: Krzysztof
- Samochód: NUBIRA /Lacetti
- Silnik: 1.8 F18D3 121KM
- LPG: Tech
- Lokalizacja: LUBLIN
- Kontakt:
Re: Czujnik ciśnienia oleju a włącznik wentylatora
Zrobiłem wczoraj próbę z autem , przed demontażem szklanek i zalaniem ponwnie świeżym olejem. Odessałem ok. 0,5l oleju , zalałem silnik ...Moto Doctorem 444ml i dopełniłem na MAX. Wiem , druciarstwo
, ale dzisiaj jest gorąco i mam trochę jazdy po mieście , zobaczę co się będzie dziać. "Laceton" dalej puszcza bąka zaraz po odpaleniu ,czyli wywalę obecne i jeszcze raz założę nowe uszczelniacze zaworowe. W końcu muszęęęęęęę odkryć , dlaczego ta kontrolka mruga jak się motor mocno rozgrzeje i auto dymi
.


VIN >KL1NF35BJ6K335315
Kto jest online
Użytkownicy przeglądający to forum: Obecnie na forum nie ma żadnego zarejestrowanego użytkownika i 1 gość