T250 1.2 84km 16v wentylator chłodnicy

Stuka, puka, kapie, cieknie...
ODPOWIEDZ
Razor695
Świeżak
Posty: 5
Rejestracja: 23 maja 2024, o 11:06
Reputacja: 0
Imię: Rafal
Samochód: Aveo t250
Silnik: 12. 16v 84km
LPG: Nie
Inny samochód: Seat leon 1.9tdi
Lokalizacja: Pruszkow
Kontakt:

T250 1.2 84km 16v wentylator chłodnicy

Post autor: Razor695 » 23 maja 2024, o 13:48

Czesc,

Chevrolet aveo t250 1.2 16v 84km

Nie załącza się wentylator pomimo że temperatura rośnie na zegarach do 3/4

Co sprawdzone?
1. Bezpieczniki
2. Przekaźniki zamienione
3. Wentylator na krótko się załącz po podaniu 12v z aku.

Wymienienono:
Pompę wody
Termostat 82C NRF

Czy ktoś orientuje się co jeszcze mogę wykluczyć?
Gdzie znajduje się termowlacznik/czujnik wentylatora ?
Czy spalony rezystor będzie ujawniał się całkowitym brakiem sterowania wentylatora ? Udało mi się go rozgrzac do 3/4 skali temperatury jednakże wentylator dalej się nie załącza

Pozdrawiam serdecznie
Szerokości i bezawaryjności

Awatar użytkownika
bubu1769
Administrator
Posty: 6870
Rejestracja: 5 wrz 2018, o 16:40
Reputacja: 457
Imię: Bartłomiej
Samochód: Aveo T250
Silnik: 1.4 101KM
Inny samochód: Orlando 1.4T, Meriva A 1.8
Lokalizacja: Kalisz
Kontakt:

Re: T250 1.2 84km 16v wentylator chłodnicy

Post autor: bubu1769 » 23 maja 2024, o 14:31

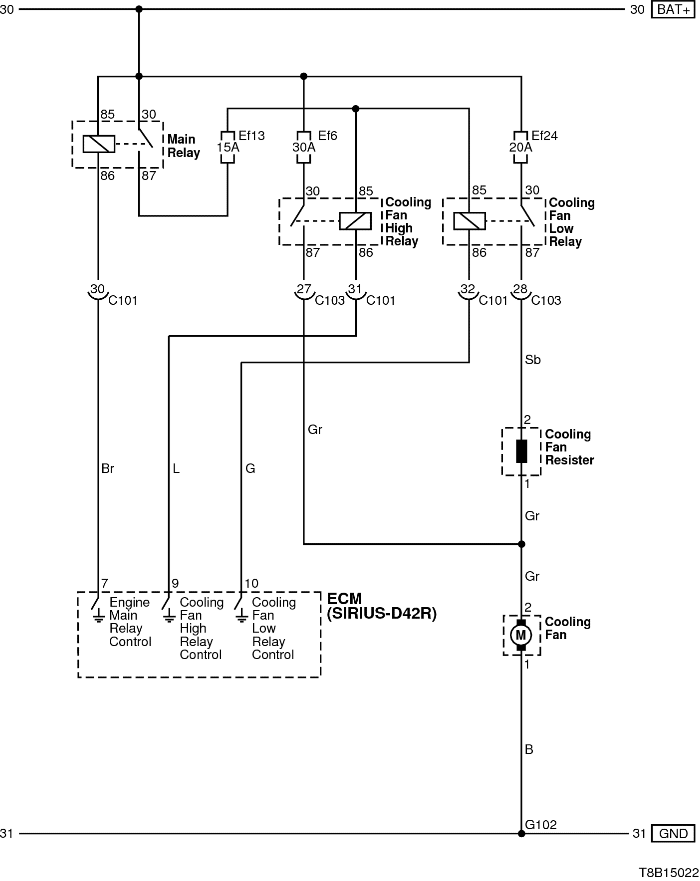
Ogólnie to w skrzynce bezpieczników trzeba by sprawdzić czy po zmostkowaniu przekaźników wentylator ruszy i czy z ECM przychodzą sygnały.
T8B15022.png

Razor695
Świeżak
Posty: 5
Rejestracja: 23 maja 2024, o 11:06
Reputacja: 0
Imię: Rafal
Samochód: Aveo t250
Silnik: 12. 16v 84km
LPG: Nie
Inny samochód: Seat leon 1.9tdi
Lokalizacja: Pruszkow
Kontakt:

Re: T250 1.2 84km 16v wentylator chłodnicy

Post autor: Razor695 » 23 maja 2024, o 14:58

W jaki sposób obadac czy od ecm idzie sygnał ? Od jakiej temp powinien pracować niski bieg ?
Od jakiej wysoki ?

Awatar użytkownika
bubu1769
Administrator
Posty: 6870
Rejestracja: 5 wrz 2018, o 16:40
Reputacja: 457
Imię: Bartłomiej
Samochód: Aveo T250
Silnik: 1.4 101KM
Inny samochód: Orlando 1.4T, Meriva A 1.8
Lokalizacja: Kalisz
Kontakt:

Re: T250 1.2 84km 16v wentylator chłodnicy

Post autor: bubu1769 » 23 maja 2024, o 15:07

Sygnały najlepiej sprawdzić w gnieździe przekaźnika, miernikiem albo nawet zwykłym próbnikiem 12V.
Pamiętaj tylko że ze sterownika przychodzą sygnały masy a nie plusa.
Kolor czerwony - stały plus
Kolor żółty - plus po stacyjce
Kolor niebieski - wyjście na wentylator
Kolor zielony - sygnał masy ze sterownika
sketch-1716470248555.png
1 bieg wentylatora załącza się przy 93°C, wyłącza przy 90°C
2 bieg wentylatora załącza się przy 96°C, wyłącza przy 94°C.

Razor695
Świeżak
Posty: 5
Rejestracja: 23 maja 2024, o 11:06
Reputacja: 0
Imię: Rafal
Samochód: Aveo t250
Silnik: 12. 16v 84km
LPG: Nie
Inny samochód: Seat leon 1.9tdi
Lokalizacja: Pruszkow
Kontakt:

Re: T250 1.2 84km 16v wentylator chłodnicy

Post autor: Razor695 » 23 maja 2024, o 15:47

Wczoraj próbowałem mostkowac niebieska kropkę z czerwoną i bez reakcji, jak mniemam wiazka pomiędzy skrzynka a wentylatorem ?
Ewentualnie powtórzę jeszcze raz zabieg

Awatar użytkownika
bubu1769
Administrator
Posty: 6870
Rejestracja: 5 wrz 2018, o 16:40
Reputacja: 457
Imię: Bartłomiej
Samochód: Aveo T250
Silnik: 1.4 101KM
Inny samochód: Orlando 1.4T, Meriva A 1.8
Lokalizacja: Kalisz
Kontakt:

Re: T250 1.2 84km 16v wentylator chłodnicy

Post autor: bubu1769 » 23 maja 2024, o 15:48

A na czerwonych kropkach masz zasilanie?
Może po prostu bezpieczniki strzeliły.

Razor695
Świeżak
Posty: 5
Rejestracja: 23 maja 2024, o 11:06
Reputacja: 0
Imię: Rafal
Samochód: Aveo t250
Silnik: 12. 16v 84km
LPG: Nie
Inny samochód: Seat leon 1.9tdi
Lokalizacja: Pruszkow
Kontakt:

Re: T250 1.2 84km 16v wentylator chłodnicy

Post autor: Razor695 » 23 maja 2024, o 17:23

Obadam dzisiaj i dam znać

Razor695
Świeżak
Posty: 5
Rejestracja: 23 maja 2024, o 11:06
Reputacja: 0
Imię: Rafal
Samochód: Aveo t250
Silnik: 12. 16v 84km
LPG: Nie
Inny samochód: Seat leon 1.9tdi
Lokalizacja: Pruszkow
Kontakt:

Re: T250 1.2 84km 16v wentylator chłodnicy

Post autor: Razor695 » 23 maja 2024, o 22:34

Jednak winowajcą okazała się wtyczka wentylatora a mianowicie zabrudzone styki.
Dziękuję wszystkim za pomoc!
Załączniki
Poszukuję takiej wtyki męskiej + żeńskiej (czarnej) w vw wiem jak znaleźć w chevroletach jestem zielony czy ktoś się orientuję gdzie znajdę takie wtyki
Poszukuję takiej wtyki męskiej + żeńskiej (czarnej) w vw wiem jak znaleźć w chevroletach jestem zielony czy ktoś się orientuję gdzie znajdę takie wtyki

ODPOWIEDZ

Wróć do „Aveo/Kalos Mechanika”

Kto jest online

Użytkownicy przeglądający to forum: Obecnie na forum nie ma żadnego zarejestrowanego użytkownika i 1 gość